About
Work
Contact
B E N F A T T O
About
Work
Contact
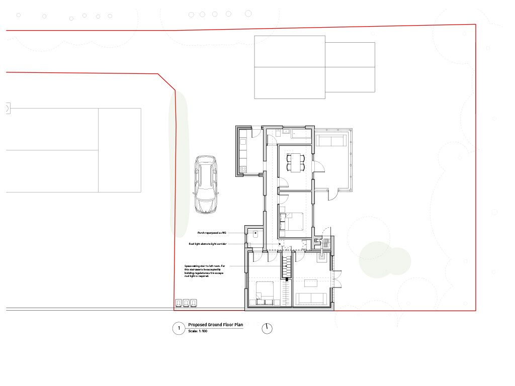
Loft conversion and entire house renovation
Renovation of a 1920's stable conversion, Oxfordshire
You may also like
Work anywhere cabin
Bespoke garden pavilion
Bespoke plywood staircase
Event architecture
Bespoke garden room Oxford
↑
Back to Top